Zum Inhalt springen
Sommersemester 2021

Baukonstruktion 2

Münster

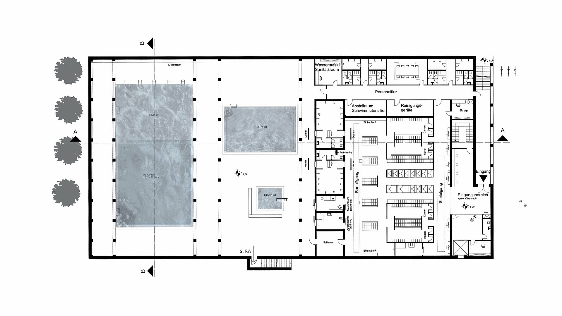
Schwimmhalle Geist

Johanna Hiermeier, Lorina Grimm

Bruno Neß, Julia Jaschik

Lena Kopsieker, Christine Brinkmeier

Nathalie Bauer, Pauline Golüke

Paul Gressel, Benjamin Wolf